堺市東区日置荘西町6丁★中古戸建

価格変更しました❕❕

令和6年10月リフォーム済!
駅徒歩12分
小学校・スーパー・コンビニも徒歩10分圏内
所在:堺市東区日置荘西町6丁
交通:南海高野線「初芝」駅 徒歩約12分
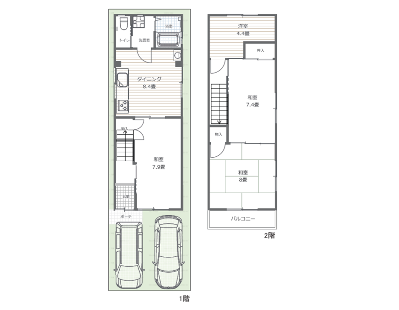
敷地面積:(公簿)68.62㎡(約20.75坪)
私道負担:無
接道:北側 公道 幅員約6m 間口約4.4m
床面積:77.72㎡(約23.5坪)
構造:鉄骨造2階建
築年月:1988年(昭和63年)12月
都市計画:市街化区域 用途地域:第一種住居地域
建ぺい率:60% 容積率:200%
現況:空家
引渡時期:相談
取引態様:媒介
設備:電気、上水道、下水道、都市ガス
駐車場:有
《リフォーム内容》
●1階・2階(各1箇所)シャッター付窓に交換
●洗面台造作●洗濯パン移設●畳入替
●全室クロス(壁・天井)貼替え





詳しくはお問い合わせください。