富田林市西板持町2丁目★戸建賃貸

ガレージハウス オーナーチェンジ物件!!
表面利回り9.6%
現況月収合計 80,000円 現況年収合計 960,000円

所在:富田林市西板持町2丁目
敷地面積:(公簿)54.45㎡(約16.47坪)
私道負担:有 約9.32㎡(約2.81坪)
接道:北側 私道 幅員約4m 間口4.8m
床面積:(公簿)47.47㎡(約14.35)
構造:木造瓦葺2階建 築年月:1971年(昭和46年)10月
都市計画:市街化区域 建ぺい率:60% 容積率:200%
用途地域:第一種住居地域 防火地区:準防火地域
設備:都市ガス、公営水道、公共下水
《令和3年7月 リフォーム済》
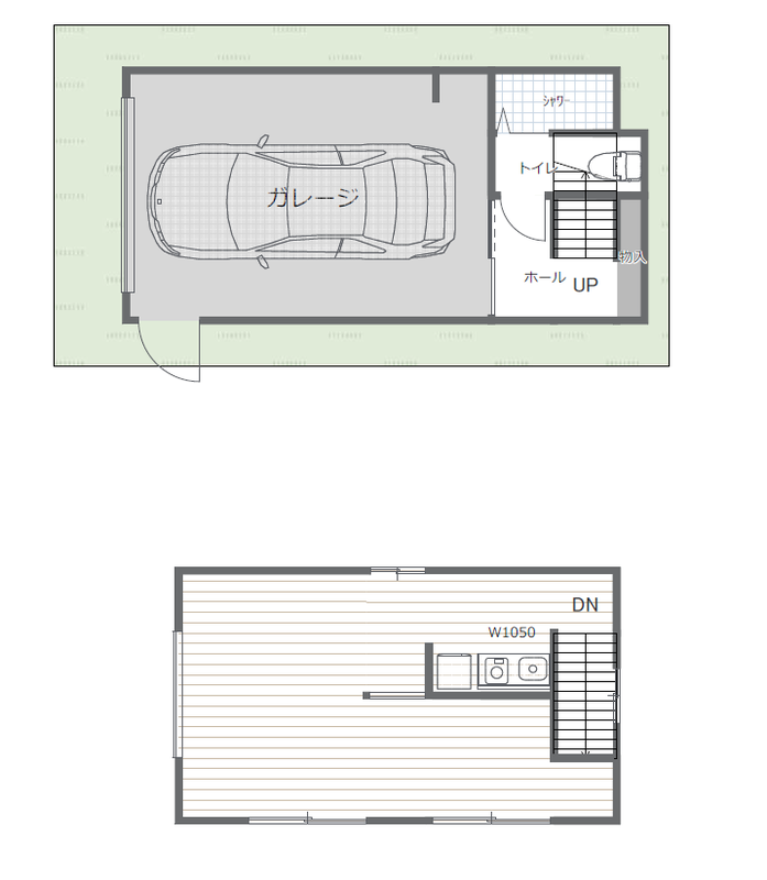
1階:電動シャッター新設、勝手口新設、内部玄関ドア新設、シャワーユニット新設、
温水洗浄便座付トイレ新設、ガレージ土間塗装仕上、ガレージクロス貼替
2階:床フローリング、壁クロス貼替、天井杉板貼及び塗装、正面窓新調、ミニキッチン新調
屋根カラーベスト葺替、外壁吹付塗装、給湯器新調
取引態様:媒介
※私道負担約9.32㎡は敷地面積54.45㎡に含みます。






詳しくはお問い合わせください。